慣性共振動給料機特點
激振器的偏心錘通過皮帶輪,由電動機帶動,具有防塵、防水、防爆等性能,結構合理、節能、噪聲小、重量輕、壽命長等特點,是一種理想給料設備。

慣性共振動給料機用途
慣性共振給料機(共振式振動給料機)是我廠引進國外技術,替代進口產品的機型,慣性共振式給料機(共振式振動給料機)采用雙質體近共振原理,參照國內外各類給料機優點及用戶使用要求而研制的,給料機的主振系統采用了特制橡膠與金屬板粘合組合式主振彈簧,隔振系統采用了復合式彈簧。該機調速采用機械調速,但可根據用戶要求配備變頻調速器實現無級調速來改變振幅,以控制給料速度。

慣性共振動給料機參數尺寸
XJG慣性共振動給料機參數尺寸
規 格 | 功 率 ( K W ) | 槽 體 尺 寸 ( 寬 × 長 ) m/m | 重 量 ( K G ) | 槽 體 Zui 大 給 料 量 | |
煤 ( t/h ) | 砂 子 ( t/h ) | ||||
XJG-50 | 3 | 500×760 | 750 | 100 | 150 |
XJG-70 | 4 | 700×1220 | 1100 | 240 | 360 |
XJG-90 | 4 | 900×1370 | 1400 | 320 | 480 |
XJG-120 | 4 | 1200×1830 | 1650 | 560 | 840 |
XJG-150 | 7.5 | 1500×2140 | 2100 | 960 | 1450 |
XJG-180 | 11 | 1800×2440 | 2600 | 1200 | 1800 |
XJG-200 | 15 | 2000×2745 | 3700 | 1520 | 2280 |
XJG-240 | 18.5 | 2400×3360 | 4800 | 1920 | 2880 |

規 格 | A | B | C | E | F | G | H | J | K | L | N | P | Q | R | S | T |
XJG-50 | 500 | 760 | 130 | 130 | 87 | 648 | 119 | 775 | 320 | 95 | 590 | 40 | 400 | 455 | 460 | 160 |
XJG-70 | 700 | 1220 | 150 | 180 | 165 | 1010 | 140 | 1295 | 450 | 185 | 875 | 95 | 510 | 660 | 610 | 190 |
XJG-90 | 900 | 1370 | 100 | 200 | 133 | 1175 | 135 | 1340 | 440 | 150 | 1070 | 95 | 635 | 680 | 610 | 225 |
XJG-120 | 1200 | 1830 | 260 | 200 | 76 | 1600 | 390 | 2065 | 585 | 100 | 1440 | 75 | 740 | 900 | 550 | 480 |
XJG-150 | 1500 | 2140 | 420 | 200 | 210 | 1760 | 560 | 2520 | 745 | 230 | 1740 | 150 | 940 | 1120 | 635 | 555 |
XJG-180 | 1800 | 2440 | 540 | 200 | 355 | 1875 | 710 | 2940 | 810 | 380 | 2050 | 150 | 1115 | 1230 | 845 | 845 |
XJG-200 | 2000 | 2745 | 635 | 255 | 416 | 2100 | 820 | 3310 | 845 | 450 | 2270 | 180 | 1100 | 1320 | 845 | 845 |
XJG-240 | 2400 | 3050 | 620 | 255 | 480 | 2350 | 790 | 3625 | 840 | 510 | 2670 | 200 | 1385 | 1370 | 845 | 845 |
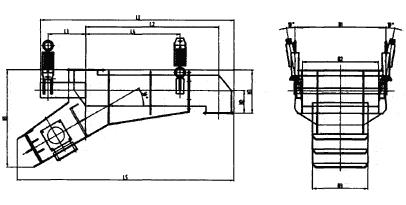
XJGf技術參數及外形尺寸:

規 格 | L1 | L2 | L3 | L4 | L5 | H1 | H2 | H3 | B1 | B2 | B3 |
XJGF-70 | 2650 | 1500 | 760 | 1100 | 2770 | 1185 | 300 | 550 | 1400 | 700 | 720 |
XJGF-80 | 2510 | 1500 | 500 | 1200 | 2575 | 1238 | 300 | 550 | 1200 | 800 | 720 |
XJGF-100 | 2550 | 1750 | 500 | 1240 | 2845 | 1280 | 300 | 550 | 1250 | 1000 | 720 |
XJGF-110 | 2760 | 1750 | 550 | 1600 | 2905 | 1308 | 300 | 550 | 1482 | 1100 | 720 |
蘇公網安備 32062102000309號